400-003-8066

麻豆影院91性欲案例分析

您所在的位置: 首页 > 资讯频道 > 技术支持 > 技术文章 > 宝鸡大强奸乱伦麻豆主剧场建筑声学设计

宝鸡大强奸乱伦麻豆主剧场建筑声学设计

来源:ZOBO麻豆影院91性欲 发布日期 2023-03-19 浏览:

  为迎接第九届陕西省艺术节,让广大人民群众共享文化惠民成果,同时提升宝鸡市文化软实力和综合竞争力,故兴建宝鸡大强奸乱伦麻豆。宝鸡大强奸乱伦麻豆项目选址位于宝鸡市金台区新东岭城市综合体范围内(图1),于2020年10月投入使用。

1宝鸡大强奸乱伦麻豆主剧场建筑声学设计

图1宝鸡大强奸乱伦麻豆实景图

  宝鸡大强奸乱伦麻豆建筑方案深化设计、内装方案及深化设计、建筑声学设计,均由天津大学建筑设计规划研究总院有限公司独立承担。宝鸡大强奸乱伦麻豆总占地面积约30000m2,主体建筑总面积约40906m2。其中,地上三层建筑面积约25500m2,地下一层建筑面积约15400m2。宝鸡大强奸乱伦麻豆内设一个约1205座的主剧场和一个500座的多功能剧场,以及合唱排练厅和音乐排练厅等其他配套房间(图2)。本文主要介绍主剧场的建筑声学设计。

2宝鸡大强奸乱伦麻豆主剧场建筑声学设计

图2宝鸡大强奸乱伦麻豆大厅实景图

  一、剧场功能及建筑概况

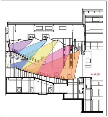
  宝鸡大强奸乱伦麻豆主剧场主要以演出各类音乐剧、交响乐、地方戏曲等舞台类演出,以及举办大型会议为主。主剧场座位数约1205座,其中池座870座,临时座椅90座,二层楼座225座,包厢20座;有效容积约10309m³,每座容积8.5m³/座。主剧场建筑平面略呈马蹄形,楼座由观众厅后部延伸至两侧,良好的体型为建筑声学提供了较好的声场环境。舞台呈品字形,包含主舞台、侧舞台和后舞台,舞台总面积1768m2,舞台开口为16m×10m;舞台台口线至池座和楼座后墙水平距离为32m;观众厅宽度为29.2m;楼座下开口高深比5.2:7.3=1:1.4≥1:1.5,符合规范要求。池座观众席共22排(图3),前后高差(总起坡)为5.5m,平均起坡为0.26m;楼座观众共7排(图4),前后高差(总起坡)为2.98m,平均起坡为0.5m。舞台设有活动音乐罩,观众席前部设升降乐池。剧场主扬声器设于台口前部天花主扬声器桥内,拉声像扬声器位于台口八字墙区域,所有扬声器均为暗藏式;音控室、灯控室设于池座后墙的中部。图5~图6为观众厅剖面图及实景图。

3宝鸡大强奸乱伦麻豆主剧场建筑声学设计

图3观众厅池座平面图

4宝鸡大强奸乱伦麻豆主剧场建筑声学设计

图4观众厅楼座平面图

5宝鸡大强奸乱伦麻豆主剧场建筑声学设计

图5观众厅剖面图

6宝鸡大强奸乱伦麻豆主剧场建筑声学设计

图6观众厅实景图

  二、主要声学设计指标

  根据主剧场使用功能及规模的不同,同时参考业主方的使用要求,确定观众厅内声学的音质参量指标,并作为声学设计及室内设计必须考虑的原则。此外,根据业主使用需求,主剧场以演出歌舞剧为主,所以,设计指标以不使用舞台音乐罩工况为准。

  根据以上情况,对于宝鸡大强奸乱伦麻豆主剧场,各项声学设计技术指标如下。

  混响时间RT:要求满场1.5s±0.1s,空场1.7s±0.1s,频率特性见表1。

  声场不均匀度:在自然声源的条件下,大与小声级差值≤6dB〜8dB。

  音乐明晰度C80:1dB~3dB。

  语言清晰度D50:≥0.45。

  语言传输指数STI:≥0.45。

6.宝鸡大强奸乱伦麻豆主剧场建筑声学设计

  三、建筑体型设计

  1、八字墙形状设计

  主剧场观众厅平面整体呈马蹄形,能提供良好的声场效果。主剧场同时承担音乐演出的需求,需要以自然声进行演出,舞台八字墙设计尤为重要。舞台八字墙能为观众席前区提供前次反射声,提高该区域观众的观演效果。图7为调整前的台口八字墙声线分析图,可以看出,图中蓝色区域,即观众厅前中区缺少前次反射声。对八字墙形状进行调整后的声线分析见图8,前次反射声能覆盖观众席中前区,保证观众席区域观众能够获得很好的丰满感。

7宝鸡大强奸乱伦麻豆主剧场建筑声学设计

图7八字墙调整前声线分析图

8宝鸡大强奸乱伦麻豆主剧场建筑声学设计

图8八字墙调整后声线分析图

  2、吊顶形式设计

  观众厅剖面设计取决于两个因素。一是规范规定的每座容积,它能确定观众厅吊顶的大概高度;二是观众厅剖面声线分析,它能确定吊顶的形式。结合上述两个因素,确定的吊顶形式如图9、图10所示。可以看出,经吊顶反射的声音能覆盖观众席的所有区域,其分布均匀,能达到良好的声场效果。

9宝鸡大强奸乱伦麻豆主剧场建筑声学设计

图9剖面声线分析图(声源位于大幕线后)

10宝鸡大强奸乱伦麻豆主剧场建筑声学设计

图10剖面声线分析图(声源位于乐池)

  四、观众厅表面装修材料的声学设计

  根据确定的混响时间值,对主剧场观众厅进行声学材料布置,同时遵循室内声学材料布置原则,确定观众厅空间以下部位的材料及构造做法。

  (1)观众厅地坪及走道

  主剧场主体结构采用钢结构,由于工期问题,观众厅楼面基层采用纤维水泥压力板,基层下采用排布紧密的小钢柱起支撑作用,为了尽可能减小人员走动产生的振动噪声,采用两层共48mm厚纤维水泥压力板(单层面密度≥40kg/m2)、两层之间铺设1.2mm厚隔声毡作为楼面基层材料。同时,为了避免刚性连接,在钢柱与地下一层钢筋混凝土楼面之间布置16mm厚减振层。观众厅地坪材料采用“15mm厚实木地板+15mm厚松木毛地板”。为了进一步降低人员走动产生的振动噪声,在观众厅的主要通道(即走道位置)铺设地毯,具体构造为“10mm厚阻燃地毯+20mm厚松木毛地板”。

  (2)观众厅吊顶

  为了保证足够的反射声,以及结合吊顶异形造型的需求,吊顶材质采用GRG,建议厚度不低于30mm,体密度不低于1800kg/m3。

  (3)观众厅侧墙前区

  该区域需要将声音反射到观众席区域,因此,需采用硬质材料,结合内装设计方案,此区域采用与吊顶相同的GRG材料。

  (4)观众厅侧墙中区

  该区域同样需进行反射处理,结合内装设计方案,在此区域布置15mm厚实木板。

  (5)观众厅侧墙后区、观众厅后墙

  观众厅侧墙后区及后墙区域材料需以强吸声为主,避免产生回声,结合混响时间设计,此区域采用木质穿孔板吸声构造,具体做法为“15mm厚穿孔木质板(孔径3mm、孔距16mm)+50mm厚玻璃棉(容重32kg/m3)”。其中,侧墙区域反射、吸声材料布置位置参考图11。

11宝鸡大强奸乱伦麻豆主剧场建筑声学设计

图11墙体材料布置位置示意(红色代表反射、蓝色代表吸声)

  (6)楼座栏板

  楼座栏板应避免垂直面,做吸声或扩散处理。根据观众厅混响时间控制,以及结合内装装饰效果,在栏板部分做弧形扩散处理,大样示意见图12。

12宝鸡大强奸乱伦麻豆主剧场建筑声学设计

图12楼座栏板大样示意图

  (7)舞台

  舞台容积27762m³,大约是观众厅的3倍,混响时间要求与观众厅接近。因此,在舞台工艺进行舞台幕布布置的前提下,对舞台进行混响时间设计。一层天桥以下采用12.5mm厚穿孔石膏板,具体构造为“12.5mm厚穿孔石膏板(穿孔率13.1%,大小眼孔,孔径12/8)+50mm厚离心玻璃棉(容重32kg/m3)+350mm厚空腔”。为了防止道具等冲撞破坏墙体,建议5m以下采用容重大于1150kg/m3的中密度埃特板、5m至一层天桥采用12.5mm厚石膏板,两种材料构造相同。一层天桥至二层天桥下采用12.5mm厚石膏板,具体构造为“12.5mm厚石膏板+400mm厚空腔”,进一步降低低频混响时间。吊顶进行无机纤维喷涂,避免声音经此处反射,产生回声。

  五、计算机模拟分析

  混响时间设计完成后,采用Odeon软件对声场环境进行模拟,对方案起到一定的校正作用。观众厅各部位吸声系数见表2,图13为模拟软件中三维模型图,图14~图18为各参数的模拟结果,表3为各测点平均值。

12宝鸡大强奸乱伦麻豆主剧场建筑声学设计

表2观众厅界面吸声系数表

13宝鸡大强奸乱伦麻豆主剧场建筑声学设计

图13Odeon软件三维模型图

14宝鸡大强奸乱伦麻豆主剧场建筑声学设计

图14T30参数模拟结果

15宝鸡大强奸乱伦麻豆主剧场建筑声学设计

图15SPL参数模拟结果

16宝鸡大强奸乱伦麻豆主剧场建筑声学设计

图16C80参数模拟结果

17宝鸡大强奸乱伦麻豆主剧场建筑声学设计

图17D50模拟结果

18宝鸡大强奸乱伦麻豆主剧场建筑声学设计

图18STI参数模拟结果

18宝鸡大强奸乱伦麻豆主剧场建筑声学设计

表3各频点模拟参数平均值

  六、测试结果及分析

  根据混响时间测量规范,在观众厅内共布置17个测点,对主剧场进行空场竣工检测,各参数检测结果见表4。

18宝鸡大强奸乱伦麻豆主剧场建筑声学设计

表4各测点实测参数平均值

  从检测结果可以看出:

  空场中频混响时间平均值为1.67s,同时考虑工程误差,在设计要求范围内;低频为2.04s,不超出规范规定的限值范围;中高频混响时间平直,整个混响时间测试结果较为理想,满足设计要求。

  声压级检测结果表明,17个测点的声压级为77.6dB,声压级为73.95dB,差值为3.65dB,小于6dB,说明厅堂内声压级分布均匀。

  音乐明晰度是评价音乐声是否清晰的参数,所有倍频程测量结果均大于1dB,说明观众能很好地听清音乐声。

  语言清晰度是评价厅堂语言声是否清晰的参数,所有倍频程测量结果均大于0.3,略小于要求的≥0.45,可能是由于空场环境缺少观众吸声造成的。

  语言传输指数同样是评价语言声的参数。参数越大,代表观众听到的语言声越清晰。测点测试结果均值为0.52,表明观众厅内清晰度好。

  作为宝鸡市崭新的文化建筑,宝鸡大强奸乱伦麻豆是宝鸡市市民共享文化盛宴的重要场所。本次建筑声学设计,通过前期的建筑体型设计、混响时间设计、计算机辅助模拟,及后期声学检测,表明主剧场混响时间设计达到预期、混响时间特性曲线符合规范、声场分布均匀、具有一定的丰满度和清晰度,满足表演剧种的功能使用要求。有理由相信,未来宝鸡大强奸乱伦麻豆一定能肩负丰富人们精神文化生活的重任,为宝鸡市市民带来美好的视听体验。

  选自《演艺科技》2021年第8期陈航,刘刚《宝鸡大强奸乱伦麻豆主剧场建筑声学设计》,转载请标注:演艺科技传媒。更多详细内容请参阅《演艺科技》。

网站地图